Sanierungsbedürftiges und denkmalgeschütztes Mehrfamilienhaus in Wilsdruff zu verkaufen
01723 Wilsdruff, Haus zum Kauf
Kontaktdaten
-
FirmaLoitzsch Immobilien
-
AdresseSiedlung 1
01728 Bannewitz -
E-Mail Zentrale
-
Tel. Zentrale
-
Fax(0351) 30707281
Objektdaten
-
Objekt ID1979
-
ObjekttypHaus
-
Adresse01723 Wilsdruff
-
Wohnfläche ca.260 m²
-
Grundstück ca.260 m²
-
Zimmer9
-
Käuferprovision3,57% vom Kaufpreis inkl. MwSt
-
Kaufpreis120.000 EUR
Objektbeschreibung
Beschreibung
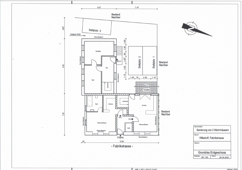
Das denkmalgeschützte Gebäude mit ca. 260 m² ist stark sanierungsbedürftig. Einer ersten Planung nach können bis zu drei Wohneinheiten geschaffen werden.
Lage
Die Gemeinde Wilsdruff grenzt an die Landeshauptstadt Dresden und ist eine Kleinstadt mit über 14.400 Einwohnern. Die Verkehrsanbindung ist durch ÖPNV und BAB 4 / BAB 17 ausgezeichnet. Nach Dresden (Hbf. 20 km entfernt) fahren Busse im 30 min Takt. Mit dem PKW sind Sie in wenigen Minuten auf der BAB 4 (1km), an der Technischen Universität (ca. 25 km) oder in der Innenstadt von Dresden. Die Infrastruktur ist familienfreundlich, kleinstädtisch und langfristig sehr gut gewachsen. Direkt im Ort sind sämtliche Einrichtungen des täglichen Bedarfs vorhanden - so finden Sie Supermärkte und eine Grundschule, Oberschule und Gymnasium in angenehmer fußläufiger Entfernung. In der Nähe finden sich auch Kindergärten- und Krippen, Frisöre, Apotheken, Ärzte und diverse Ämter. Die Bewohner erfreuen sich an einem großen Baumarkt- und Möbelmarkt. Die Gemeinde bietet für Interessierte ein aktives Vereinsleben kultureller und sportlicher Art. Diese Immobilie, liegt sehr ruhig im Stadtzentrum. Zahlreiche Freizeitangebote und Naturorte in der Umgebung laden außerdem jederzeit zu angenehmen Ausflügen ein. Z.b kann der etwa 15 Minuten entfernte Tharandter Wald, ein lohnendes Exkursionsziel sein, ebenfalls ist die Sächsische Schweiz nicht weit. Die verkehrsgünstige Lage und die Kleinstadtidylle im Grün, am Rande der Großstadt Dresden machen den Ort zu einer sehr beliebten Wohnlage.
Die ungefähre Position der Immobilie auf Google Maps ansehen (Link auf externe Website)









